
以自然为本
艺术与设计
是品牌的核心
从当代艺术中
汲取灵感
倡导柏拉图式的艺术哲学
形成
轻风尚、率美学、简艺趣
的
原创设计品牌
打造轻松意趣的生活态度
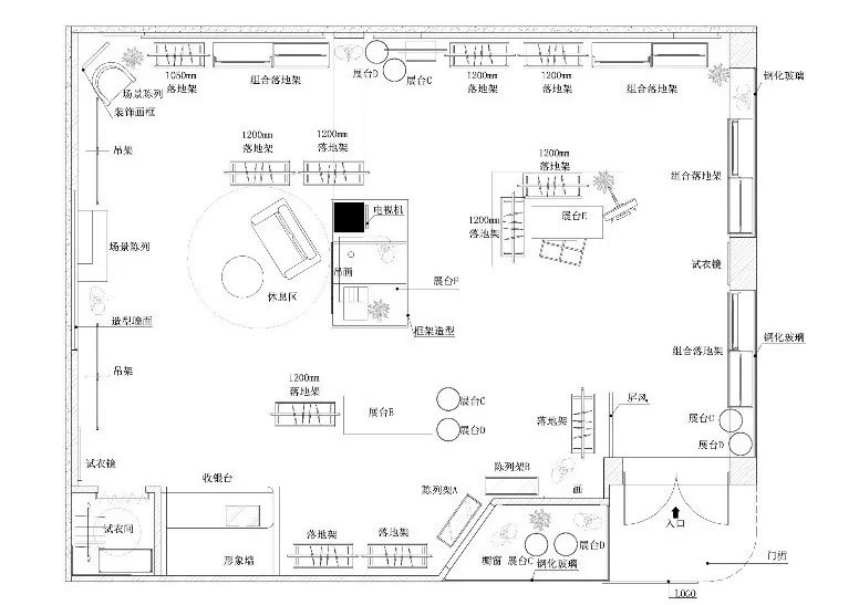
本案是“fankai梵凯”品牌的空间新形象设计,以公司的展厅为设计载体开展空间形象的研发。展厅的位置如下图,图纸的左边和后面是墙面,前面和右边靠通道,右下角面对公司大门。
-展厅原始平面图-

根据展厅所处的地理位置,结合展厅的使用功能,设计师在做空间规划的时候,决定把入口设定在现有的斜角位,把门面倒角处理,没有套路的橱窗定位,目的是为了拉宽门面的视觉,从空间形象上彰显品牌公司这次风格突破的新思路。
-展厅平面规划-

-展厅俯视效果图-

展厅是品牌公司对加盟商及意向客户的形象展示窗口,在功能上,我们保留了试衣间和服务台的设置,让客人能看到完善的服务功能配套,店内的空间,设计师以突出商品的展示和陈列场景的营造为主导,满足品牌公司对展厅的使用需求。
展厅的设计同时还需要考虑到品牌后面终端卖场效果的延伸,例如造型结构的设计、材质上的选择等,这些都要经过深思熟虑才能落地。
-展厅实景照-

门面整体造型简洁,大块面的灰色肌理板材,利用不规则的铜板作为门头的材质分割,增加轻奢的元素,提高品质感,让人耳目一新,过目不忘。

设计师将画室中的元素应用到室内空间的各个场景中,入口处摆放的艺术装置,倾泻而下的黄色颜料,刻意夸张地表达着品牌独有的轻松、有趣的特质。

改良版的画桌作为中岛的陈列展台,配合旁边的画架,便成就了一个充满艺术气息的场景,让人感觉特别亲切,喜悦感油然而生。

店内空间以灰白为主调,点缀明亮的黄色,主张着属于梵凯品牌的艺术调性。场景中展示的涂鸦作品,富有线条感,色彩轻快,与服装上的图案相呼应,在细节处充分展现出品牌的幽默青春感。



黄+蓝的对比色应用,让主调为灰白的空间瞬间丰富起来,增加一份属于都市的、现代的、温暖的氛围。

形象背景的设计灵感源于画室里常用的颜料罐,设计师在偶然的机会发现这些小小的瓶罐堆砌在一起很有意思,于是设置了一个色块组合来做墙面的装饰,创作出让人充满联想的画面感,增加空间的趣味性,同时带来惊喜感。

自己的艺术
自己
作为 一个独立的主体
有必要拥有自己的标志
自己的象征
不需要多么高大上的艺术表现手法
随意涂鸦式的涂涂画画
就能代表自己对美的呼唤
项目名称:梵凯空间新形象研发设计
项目地址:公司展厅
项目面积:105㎡
竣工时间:2019年6月
设计团队:邱基富、刘旭日、梁步尚

















